top of page
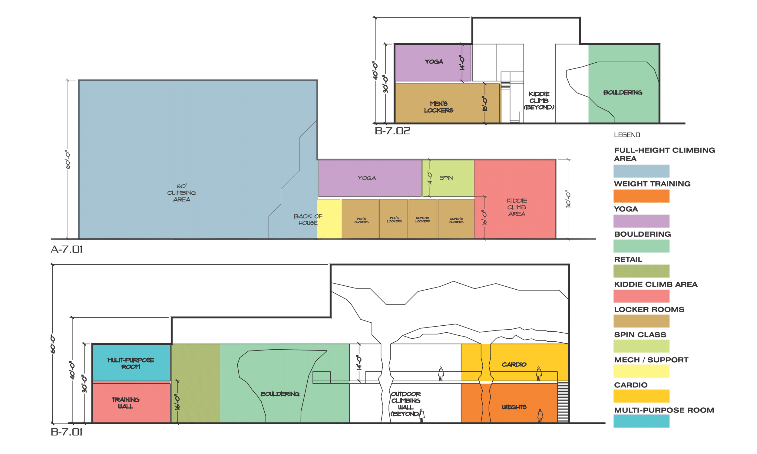
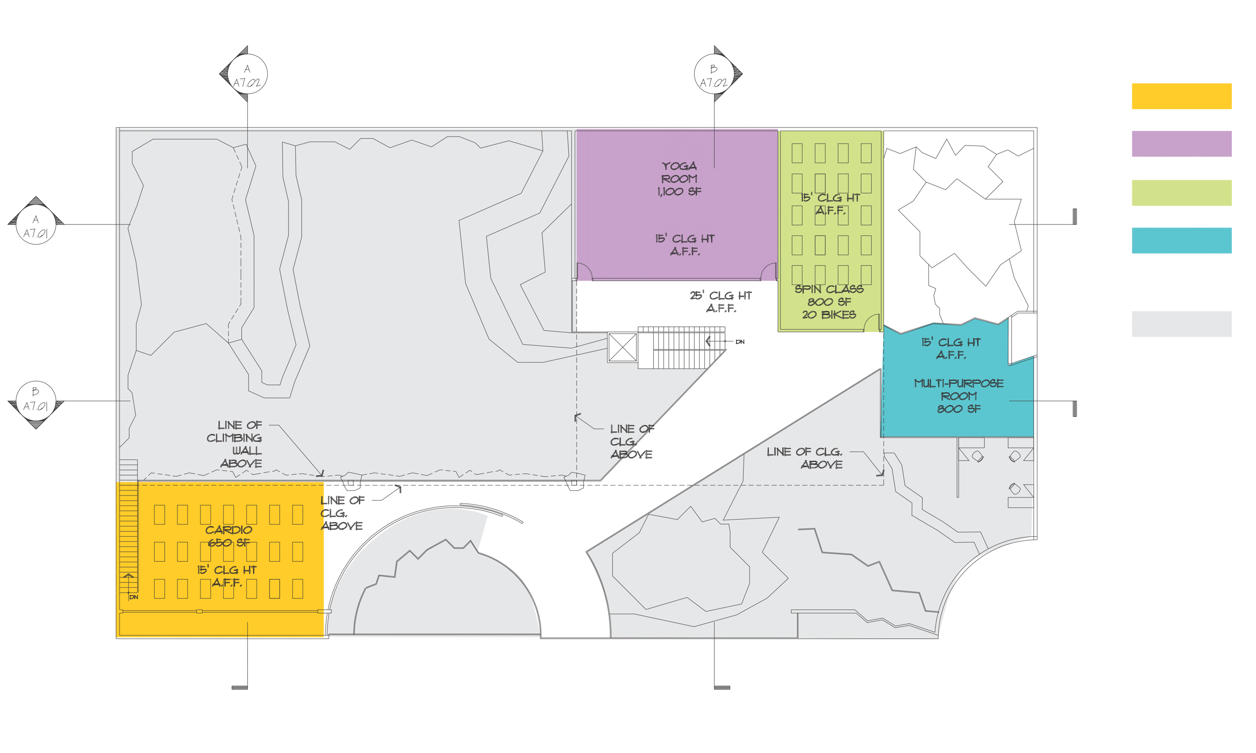
SUMMIT CLIMBING GYM

We were engaged to develop a feasibility study and capital campaign materials for a client looking to find funding for what would be the largest indoor rock climbing facility in San Diego.
At Laurie C. Fisher - Architect, we relish any opportunity to research a new project type. We know what questions to ask, and we know how to present the answers.
![]() | ![]() | ![]() |
|---|---|---|
![]() | ![]() | ![]() |
![]() | ![]() | ![]() |
![]() | ![]() | ![]() |
bottom of page











